2024/05/07
【収納計画】打合せ内容が知りたい!収納計画のプランプランニングでは専門家が丁寧に収納や間取りを提案をします。全国でも有名な収納プランナーが付いているので安心して家が作れます。

みなさん こんにちは、デザインローコスト住宅のアークプランです。
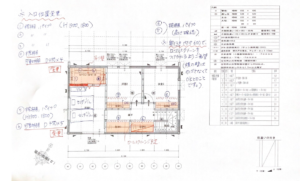
収納計画のプラン事例 NO.1


個別面談で最適な提案をさせて頂いております。
収納計画に興味がある方はアークプランまでお問合せください。

みなさん こんにちは、デザインローコスト住宅のアークプランです。
収納計画のプラン事例 NO.1


個別面談で最適な提案をさせて頂いております。
収納計画に興味がある方はアークプランまでお問合せください。