アークプランの提案なら納得の家ができる【ワクワクの家】

みなさん こんにちは、ローコストデザイン住宅熊本のアークプランです。
家づくりは楽しいこといっぱいです。家の間取りをどう進めるか知りたいですよね。私たちは、お客様に分かりやすく提案しており、パースや図面作成で、間取りを自由自在に作れます。ベースとなる家を参考に、間取りを見ていきましょう。
☆アークプランの間取りのすすめ方☆
□1階の間取りと配置を考える

□1階と2階の間取りを考える

□1階の間取りを俯瞰図で立体的に見る

□2階の間取りを俯瞰図で立体的に見る

□立面図で建物の外観を見る

□パースを使ってよりリアルに外観を見る

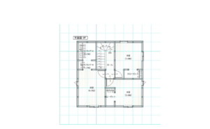
□1階間取り

□2階間取り

※上記の間取りは、規格住宅のコノッポパターンで見ています。
家具の配置などを図面で想像すると、よりわかりやすいです。
フリープランのパターンでは、完全自由設計となります。アークプランの注文住宅では、カタチは変幻自在、好みに合わせた家づくりが可能です。
ワクワクがカタチになる家 アークプランの提案なら、具体的に理想の家が想像できますね(#^.^#)
間取りや図面見ながら楽しく家づくりをしていきましょう。
☆無料相談会の実施☆
相談特典
・住宅ローン
・デザイン住宅
・土地探し
・資金計画・借入金
・中古物件
・その他 出来るだけ相談に乗ります。
通常営業時間:20:00頃まで、専門のスタッフが対応させていただきます。
◇完成見学会~最高のデザイン×ローコスト住宅熊本~◆3月◆
日時:30日31日
場所:菊池市泗水町永
■予約不要(かんたん来場)
案内図あり
家族が笑顔になれる見学会 ご来場お待ちしております。
一覧に戻る



