2024/04/08
間取りを決める【完全オリジナル住宅】あなたの家のスタイルはどのタイプ?参考間取りで考えるシミュレーション。私ならもっとこうしたい!

みなさん こんにちは、デザインローコスト住宅アークプランです。
私たちアークプランでは、完全注文住宅のオンリーワンの家づくりを行っております。
そんなアークプランでは、どんな間取りになるのでしょうか?
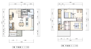
間取りの参考事例を乗せてみました。
▽間取りの参考事例▽







同じサイズでも中身が全然違った間取りになっております。
参考になりましたでしょうか?家づくりは間取りから
間取りの自由度300パターン以上!!理想の間取りはお客様次第!
こんな家に住みたいなど、あなたの夢をお聞かせください。
きっと素晴らしい家が見つかります。



